
Kancelárske priestory na prenájom v Bratislave Ružinov
- 30 m2
Realitná kancelária RE/MAX ponúka na prenájom kancelársky priestory v Ružinove na Košickej ulici v administratívnom dome DOAS, blízko autobusovej stanice Nivy.
ZÁKLADNÉ ÚDAJE
- 3. poschodie
- samostatný priestor
- 297 m²
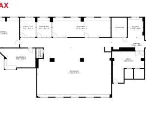
- veľký open office
- 2 samostatné kancelárie
- 4 presklené zasadačky
- priestor pre recepciu
- vlastná kuchynka
- spoločná zázemie (kuchynka, toalety)
POPIS KANCELÁRIÍ
Kancelária je vybavené štandardne technológiou: centrálne chladenie, vykurovanie, telefón, nábytok: stoly, kancelárske stoličky, skrine. Na podlahách sú položené kancelárske koberce v každej miestnosti. Veľké okná majú vertikálne žalúzie, ktoré sú prevažne orientované do hlavnej ulice. Malá kuchynka je v rámci kancelárie. Zázemie je s ďalšou kuchynkou a toalety sú zdieľané spoločne s kanceláriami na druhej strane poschodia.
Kancelária je situovaná na rušnej ulici Košická 56 v administratívnom dome DOAS, blízko autobusovej stanice Nivy. Budova je monitorovaná kamerami a s recepciou. Prístup do kancelárie je 24 hod denne (vrátane víkendov) Budova je monitorovaná kamerami a reprezentatívnou recepciu s vrátnikom. Do kancelárii je prístup výťahom priamo z garáže do budovy. Ku kanceláriám je možné prenajať garážové parkovacie miesto v garážovom dome DOAS, ktorý patrí k budove. V zadnej časti budovy sa nachádza spoločný priestor pre oddych v rámci vnútrobloku.
LOKALITA
V budove na prízemí sa nachádza lekáreň, bankomat, poisťovňa. Oproti budove sú potraviny Tesco expres, pekáreň s kaviarňou, 2x kaderníctvo so salónom, nechtový salón, bankomat Prima Banka, bystro: Reštaurácia a výživové centrum. Stravovanie počas obeda je možné aj v reštauráciách do 300m na trhovisku Miletičova alebo na Dulovom námestí.
CENOVÉ PODMIENKY
Ceny kancelárii sa pohybujú od 561,00 € do 707,85 € + DPH
V cenách sú zahrnuté všetky prevádzkové náklady
Zábezpeka/Depozit: hotovostný a to vo výške dvojmesačného nájomného
Parkovanie za 1 garážové miesto: 100 € + DPH
Províziu pre RK NEPLATÍTE.
Ulica: | Košická 56 |
---|---|
Mestská časť: | Nivy |
Obec: | Bratislava-Ružinov |
Okres: | Bratislava II |
Kraj: | Bratislavský kraj |
Druh: | Objekty |
Typ: | Prenájom |
Typ objektu: | Kancelárie |
Iné: |